אתר זה משתמש בעוגיות כדי לשפר את החוויה שלך.נניח שאתה בסדר עם זה, אבל אתה יכול לבטל את הסכמתך אם תרצה. קרא עוד
אספנו בפניכם מגוון רחב של מדריכי מידות מפורטים על מנת שתוכלו למצוא את מה שמתאים לכם בקלות ובפשטות 🙂
הכנו לכם מדריך מידות על מנת שתוכלו להתאים את המטבח לחלל באופן מושלם:
משטחי השיש באורך מטר וחצי שלנו מותאמים להתקנת כיור בצד שמאל / ימין לבחירתכם ואין צורך לציין זאת בהזמנה.
לחצו כאן למדריך מידות מטבח 1.5 בייסיק המלא
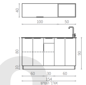
רוחב: 154 ס"מ
גובה חלק תחתון: 90 ס"מ
עומק השיש: 63 ס"מ
גובה חלק עליון: ארון גבוה: 78 ס"מ | קלאפה: 40 ס"מ
עומק חלק תחתון: 60 ס"מ
עומק חלק עליון: 30 ס"מ
כיור ניתן להתקין בצד ימין או צד שמאל של המטבח

הכנו לכם מדריך מידות על מנת שתוכלו להתאים את המטבח לחלל באופן מושלם:
משטחי השיש באורך מטר וחצי שלנו מותאמים להתקנת כיור בצד שמאל / ימין לבחירתכם ואין צורך לציין זאת בהזמנה.
לחצו כאן למדריך מידות מטבח 1.5 פרימיום המלא
רוחב: 154 ס"מ
גובה חלק תחתון: 90 ס"מ
גובה חלק עליון: 78 ס"מ
עומק חלק תחתון: 60 ס"מ
עומק חלק עליון: 30 ס"מ
כיור ניתן להתקין בצד ימין או צד שמאל של המטבח

הכנו לכם מדריך מידות על מנת שתוכלו להתאים את המטבח לחלל באופן מושלם:
משטחי השיש באורך מטר וחצי שלנו מותאמים להתקנת כיור בצד שמאל / ימין לבחירתכם ואין צורך לציין זאת בהזמנה.
לחצו כאן למדריך מידות מטבח 1.5 פרימיום המלא
רוחב: 154 ס"מ
גובה חלק תחתון: 90 ס"מ
גובה חלק עליון: 78 ס"מ
עומק חלק תחתון: 60 ס"מ
עומק חלק עליון: 30 ס"מ
כיור ניתן להתקין בצד ימין או צד שמאל של המטבח

הכנו לכם מדריך מידות על מנת שתוכלו להתאים את המטבח לחלל באופן מושלם:
משטחי השיש באורך מטר וחצי שלנו מותאמים להתקנת כיור בצד שמאל / ימין לבחירתכם ואין צורך לציין זאת בהזמנה.
לחצו כאן למדריך מידות מטבח 1.5 פרימיום עם קלאפה וכוורת
רוחב: 154 ס"מ
גובה חלק תחתון: 90 ס"מ
עומק השיש: 63 ס"מ
גובה חלק עליון: קלאפה וכוורת: 40 ס"מ
עומק חלק תחתון: 60 ס"מ
עומק חלק עליון: 30 ס"מ
כיור ניתן להתקין בצד ימין או צד שמאל של המטבח

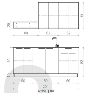
לחצו כאן למדריך מידות מטבח 2 מטר BASIC המלא
רוחב: 204 ס"מ
גובה חלק תחתון: 90 ס"מ
עומק השיש: 63 ס"מ
גובה חלק עליון: קלאפה וכוורת : 40 ס"מ
עומק חלק תחתון: 60 ס"מ
עומק חלק עליון: 30 ס"מ
מיקום הכיור במרכז השיש

לחצו כאן למדריך מידות מטבח 2 מטר BASIC עם ארונות עליונים
רוחב: 204 ס"מ
גובה חלק תחתון: 90 ס"מ
עומק השיש: 63 ס"מ
גובה חלק עליון: ארון גבוה: 78 ס"מ
עומק חלק תחתון: 60 ס"מ
עומק חלק עליון: 30 ס"מ
מיקום הכיור במרכז השיש

הכנו לכם מדריך מידות על מנת שתוכלו להתאים את המטבח לחלל באופן מושלם:
לחצו כאן למדריך מידות מטבח 2 מטר פרימיום המלא
רוחב: 204 ס"מ
גובה חלק תחתון: 90 ס"מ
עומק השיש: 63 ס"מ
גובה חלק עליון: ארון גבוה: 78 ס"מ | קלאפה: 40 ס"מ
עומק חלק תחתון: 60 ס"מ
עומק חלק עליון: 30 ס"מ
מיקום הכיור במרכז השיש

לחצו כאן למדריך מידות מטבח 2 מטר PRIMIUM עם קלאפות
רוחב: 204 ס"מ
גובה חלק תחתון: 90 ס"מ
עומק השיש: 63 ס"מ
גובה חלק עליון: קלאפה וכוורת : 40 ס"מ
עומק חלק תחתון: 60 ס"מ
עומק חלק עליון: 30 ס"מ
מיקום הכיור במרכז השיש

הכנו לכם מדריך מידות על מנת שתוכלו להתאים את המטבח לחלל באופן מושלם:
משטחי השיש באורך מטר וחצי שלנו מותאמים להתקנת כיור בצד שמאל / ימין לבחירתכם ואין צורך לציין זאת בהזמנה.
לחצו כאן למדריך מידות מטבח 2.1 BASIC המלא
רוחב: 214 ס"מ
גובה חלק תחתון: 90 ס"מ
עומק השיש: 63 ס"מ
גובה חלק עליון: קלאפה וכוורת : 40 ס"מ
ארון מזווה: 226 ס"מ
עומק חלק תחתון: 60 ס"מ
עומק חלק עליון: 30 ס"מ
כיור ניתן להתקין בצד ימין או צד שמאל של המטבח

הכנו לכם מדריך מידות על מנת שתוכלו להתאים את המטבח לחלל באופן מושלם:
משטחי השיש באורך מטר וחצי שלנו מותאמים להתקנת כיור בצד שמאל / ימין לבחירתכם ואין צורך לציין זאת בהזמנה.
לחצו כאן למדריך מידות מטבח 2.1 BASIC עם ארון עליון ומדף
רוחב: 214 ס"מ
גובה חלק תחתון: 90 ס"מ
עומק השיש: 63 ס"מ
גובה חלק עליון: ארון גבוה: 78 ס"מ
ארון מזווה: 226 ס"מ
עומק חלק תחתון: 60 ס"מ
עומק חלק עליון: 30 ס"מ
כיור ניתן להתקין בצד ימין או צד שמאל של המטבח

הכנו לכם מדריך מידות על מנת שתוכלו להתאים את המטבח לחלל באופן מושלם:
משטחי השיש באורך מטר וחצי שלנו מותאמים להתקנת כיור בצד שמאל / ימין לבחירתכם ואין צורך לציין זאת בהזמנה.
לחצו כאן למדריך מידות מטבח 2.1 PREMIUM המלא עם ארון ומדף
רוחב: 214 ס"מ
גובה חלק תחתון: 90 ס"מ
עומק השיש: 63 ס"מ
גובה חלק עליון: ארון גבוה: 78 ס"מ
ארון מזווה: 226 ס"מ
עומק חלק תחתון: 60 ס"מ
עומק חלק עליון: 30 ס"מ
כיור ניתן להתקין בצד ימין או צד שמאל של המטבח

הכנו לכם מדריך מידות על מנת שתוכלו להתאים את המטבח לחלל באופן מושלם:
משטחי השיש באורך מטר וחצי שלנו מותאמים להתקנת כיור בצד שמאל / ימין לבחירתכם ואין צורך לציין זאת בהזמנה.
לחצו כאן למדריך מידות מטבח 2.1 PREMIUM המלא עם קלאפה וכוורת
רוחב: 214 ס"מ
גובה חלק תחתון: 90 ס"מ
עומק השיש: 63 ס"מ
גובה חלק עליון: קלאפה וכוורת 40 ס"מ
ארון מזווה: 226 ס"מ
עומק חלק תחתון: 60 ס"מ
עומק חלק עליון: 30 ס"מ
כיור ניתן להתקין בצד ימין או צד שמאל של המטבח

הכנו לכם מדריך מידות על מנת שתוכלו להתאים את המטבח לחלל באופן מושלם:
לחצו כאן למדריך מידות מטבח 2.6 בייסיק המלא
רוחב: 264 ס"מ
גובה חלק תחתון: 90 ס"מ
עומק השיש: 63 ס"מ
גובה חלק עליון: קלאפות : 40 ס"מ
ארון מזווה: 226 ס"מ
עומק חלק תחתון: 60 ס"מ
עומק חלק עליון: 30 ס"מ
מיקום הכיור במרכז השיש

הכנו לכם מדריך מידות על מנת שתוכלו להתאים את המטבח לחלל באופן מושלם:
לחצו כאן למדריך מידות מטבח 2.6 בייסיק עם ארונות עליונים
רוחב: 264 ס"מ
גובה חלק תחתון: 90 ס"מ
עומק השיש: 63 ס"מ
גובה חלק עליון: ארון עליון 78 ס"מ
ארון מזווה: 226 ס"מ
עומק חלק תחתון: 60 ס"מ
עומק חלק עליון: 30 ס"מ
מיקום הכיור במרכז השיש

הכנו לכם מדריך מידות על מנת שתוכלו להתאים את המטבח לחלל באופן מושלם:
לחצו כאן למדריך מידות מטבח 2.6 פרימיום המלא
רוחב: 268 ס"מ
גובה חלק תחתון: 90 ס"מ
עומק השיש: 63 ס"מ
גובה חלק עליון: ארון גבוה: 78 ס"מ
ארון מזווה: 226 ס"מ
עומק חלק תחתון: 60 ס"מ
עומק חלק עליון: 30 ס"מ
מיקום הכיור במרכז השיש

הכנו לכם מדריך מידות על מנת שתוכלו להתאים את המטבח לחלל באופן מושלם:
לחצו כאן למדריך מידות מטבח 2.6 פרימיום עם קלאפות
רוחב: 268 ס"מ
גובה חלק תחתון: 90 ס"מ
עומק השיש: 63 ס"מ
גובה חלק עליון: קלאפות: 40 ס"מ
ארון מזווה: 226 ס"מ
עומק חלק תחתון: 60 ס"מ
עומק חלק עליון: 30 ס"מ
מיקום הכיור במרכז השיש

הכנו לכם מדריך מידות על מנת שתוכלו להתאים את המטבח לחלל באופן מושלם:
משטחי השיש באורך מטר וחצי שלנו מותאמים להתקנת כיור בצד שמאל / ימין לבחירתכם ואין צורך לציין זאת בהזמנה.
לחצו כאן למדריך מידות מטבח 3.2 בייסיק המלא
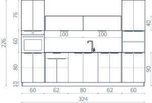
רוחב: 324 ס"מ
גובה חלק תחתון: 90 ס"מ
עומק השיש: 63 ס"מ
גובה חלק עליון: ארון גבוה: 78 ס"מ | קלאפה: 40 ס"מ
ארון מזווה: 226 ס"מ
עומק חלק תחתון: 60 ס"מ
עומק חלק עליון: 30 ס"מ
מיקום הכיור במרכז השיש

הכנו לכם מדריך מידות על מנת שתוכלו להתאים את המטבח לחלל באופן מושלם:
משטחי השיש באורך מטר וחצי שלנו מותאמים להתקנת כיור בצד שמאל / ימין לבחירתכם ואין צורך לציין זאת בהזמנה.
לחצו כאן למדריך מידות מטבח 3.2 בייסיק המלא עם ארונות
רוחב: 324 ס"מ
גובה חלק תחתון: 90 ס"מ
עומק השיש: 63 ס"מ
גובה חלק עליון: ארון גבוה: 78 ס"מ
ארון מזווה: 226 ס"מ
עומק חלק תחתון: 60 ס"מ
עומק חלק עליון: 30 ס"מ
מיקום הכיור במרכז השיש

הכנו לכם מדריך מידות על מנת שתוכלו להתאים את המטבח לחלל באופן מושלם:
לחצו כאן למדריך מידות מטבח 3.2 פרימיום המלא
רוחב: 324 ס"מ
גובה חלק תחתון: 90 ס"מ
עומק השיש: 63 ס"מ
גובה חלק עליון: ארון גבוה: 78 ס"מ | קלאפה: 40 ס"מ
ארון מזווה: 226 ס"מ
עומק חלק תחתון: 60 ס"מ
עומק חלק עליון: 30 ס"מ
מיקום הכיור במרכז השיש

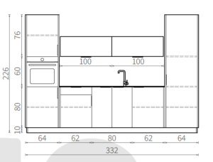
הכנו לכם מדריך מידות על מנת שתוכלו להתאים את המטבח לחלל באופן מושלם:
לחצו כאן למדריך מידות מטבח 3.2 פרימיום עם קלאפות
רוחב: 324 ס"מ
גובה חלק תחתון: 90 ס"מ
עומק השיש: 63 ס"מ
גובה חלק עליון: קלאפה: 40 ס"מ
ארון מזווה: 226 ס"מ
עומק חלק תחתון: 60 ס"מ
עומק חלק עליון: 30 ס"מ
מיקום הכיור במרכז השיש

הכנו לכם מדריך מידות על מנת שתוכלו להתאים את הארון מזווה החדש שלכם לחלל באופן מושלם:

הכנו לכם מדריך מידות על מנת שתוכלו להתאים את הארון קלאפה החדש שלכם לחלל באופן מושלם:
רוחב: 100 ס"מ
גובה : 40 ס"מ
עומק : 30 ס"מ

הכנו לכם מדריך מידות על מנת שתוכלו להתאים את הארון קלאפה החדש שלכם לחלל באופן מושלם:
רוחב: 60 ס"מ
גובה : 76 ס"מ
עומק : 30 ס"מ

הכנו לכם מדריך מידות על מנת שתוכלו להתאים את הכוורת החדשה שלכם לחלל באופן מושלם:
רוחב: 50 ס"מ
גובה : 40 ס"מ
עומק : 30 ס"מ
